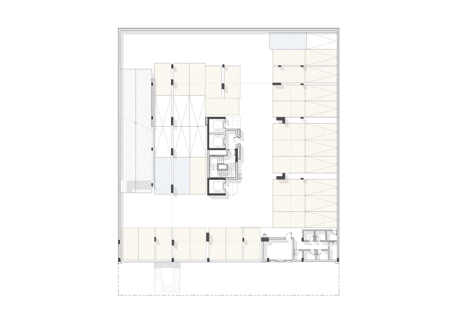
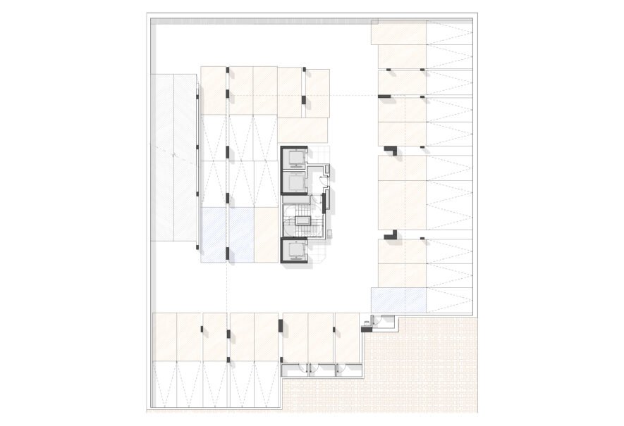
FICHA TÉCNICA

Á. TERRENO

1.308,63m²

Á. CONSTRUÇÃO

19.243,31m²

Á. PRIVATIVA

11.630,73m²

APARTAMENTOS

3-4S | 153-217m²

COOF. APROVEIT.

8,89

ANO

2022

CLIENTE

Brasal

ARQUITETURA

Alexandre Leite Arq. Ass.

FACHADA

Alexandre Leite Arq. Ass.

INTERIORES

Ana Paula Melo

PAISAGISMO

Florentino

EXECUTIVO

Alexandre Leite Arq. Ass.

LOCALIZAÇÃO