FICHA TÉCNICA

Á. TERRENO

1.425m²

Á. CONSTRUÇÃO

21.893,24m²

Á. PRIVATIVA

12.799,46m²

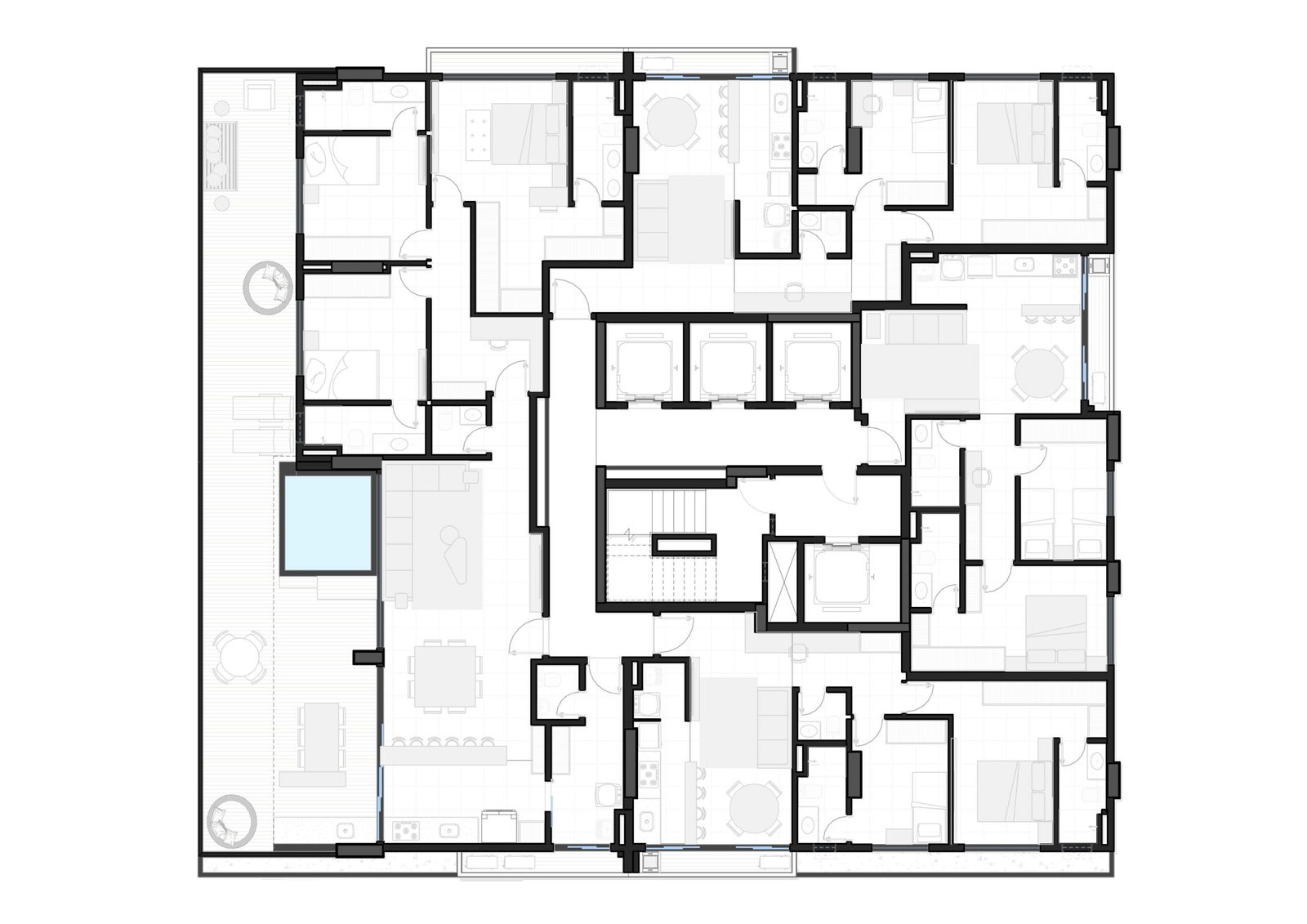
APARTAMENTOS

2Q-3S | 66,18-171,67m² c/PENTHOUSE

COOF. APROVEIT.

8,98

ANO

2021

CLIENTE

FR Incorporadora

ARQUITETURA

Alexandre Leite Arq. Ass.

FACHADA

Alexandre Leite Arq. Ass.

INTERIORES

Walter Massi e Lara Rassi

EXECUTIVO

Alexandre Leite Arq. Ass.

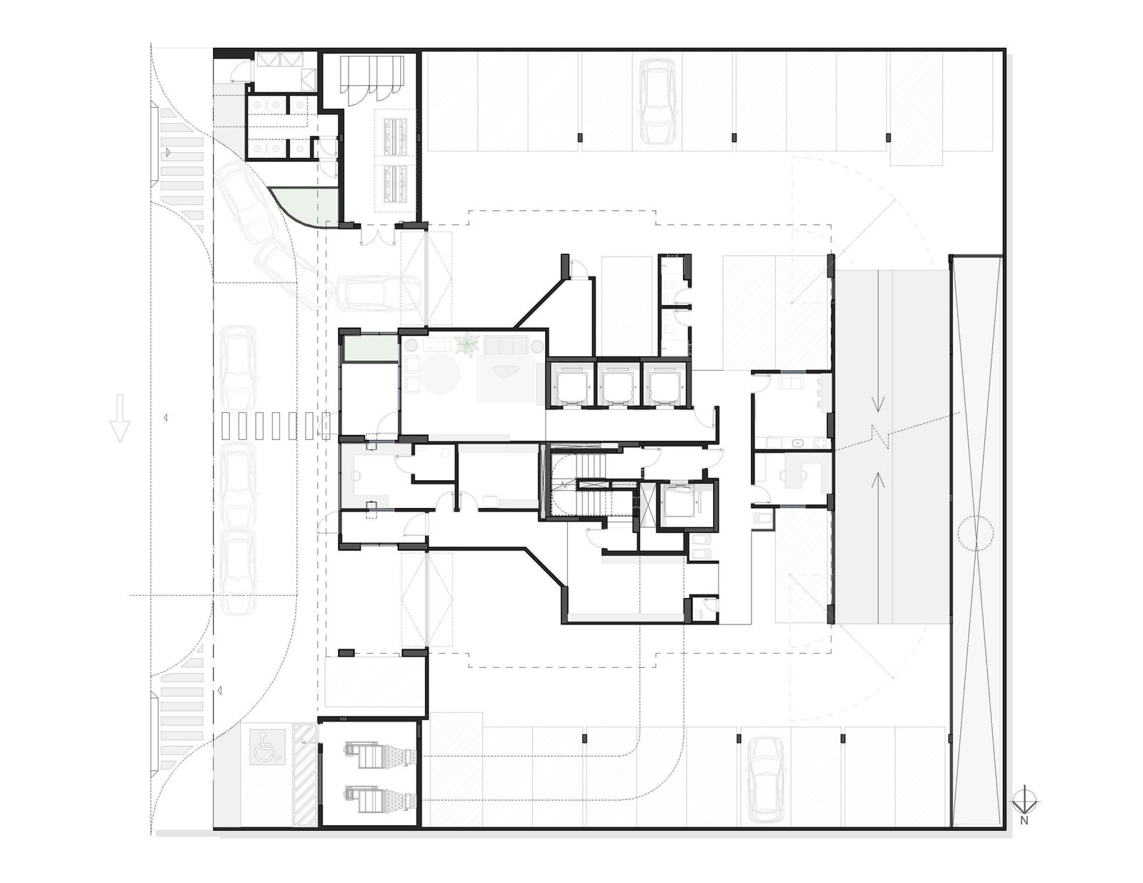
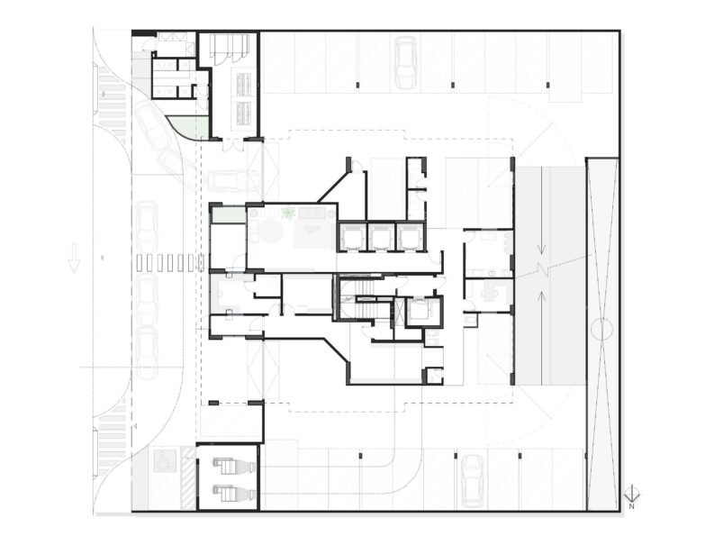
Localizado no Setor Bueno, à poucos metros do Vaca Brava próximo à mercados, bares, academias e escolas o Aysú é um edifício residencial que foi projetado para acolher tipos de públicos distintos.
Pela localização é ideal ao público jovem que deseja viver a cidade, podendo fazer tudo que precisa, sem depender de veículo. Para este público e também para pequenas famílias, apartamentos de 2 quartos e de 2 suítes foram concebidos.

Há também tipologias a aqueles que possuem famílias maiores, e que buscam pela praticidade e qualidade de se viver próximo à edifícios comerciais, escolas e parques. Para este público apartamentos de 3 suítes estão presentes em toda torre, com quatro metragens distintas.
Em seu embasamento há o pavimento de lazer que possui piscinas, SPA, sauna, academia, quadra esportiva, brinquedoteca, e salão de jogos. É neste pavimento que o sentimento de comunidade é estimulado no edifício, com espaços para que as crianças possam conviver e brincar com segurança.



LOCALIZAÇÃO