FICHA TÉCNICA

Á. TERRENO

2.912,28m²

Á. CONSTRUÇÃO

30.603,51m²

Á. PRIVATIVA

18.050,40m²

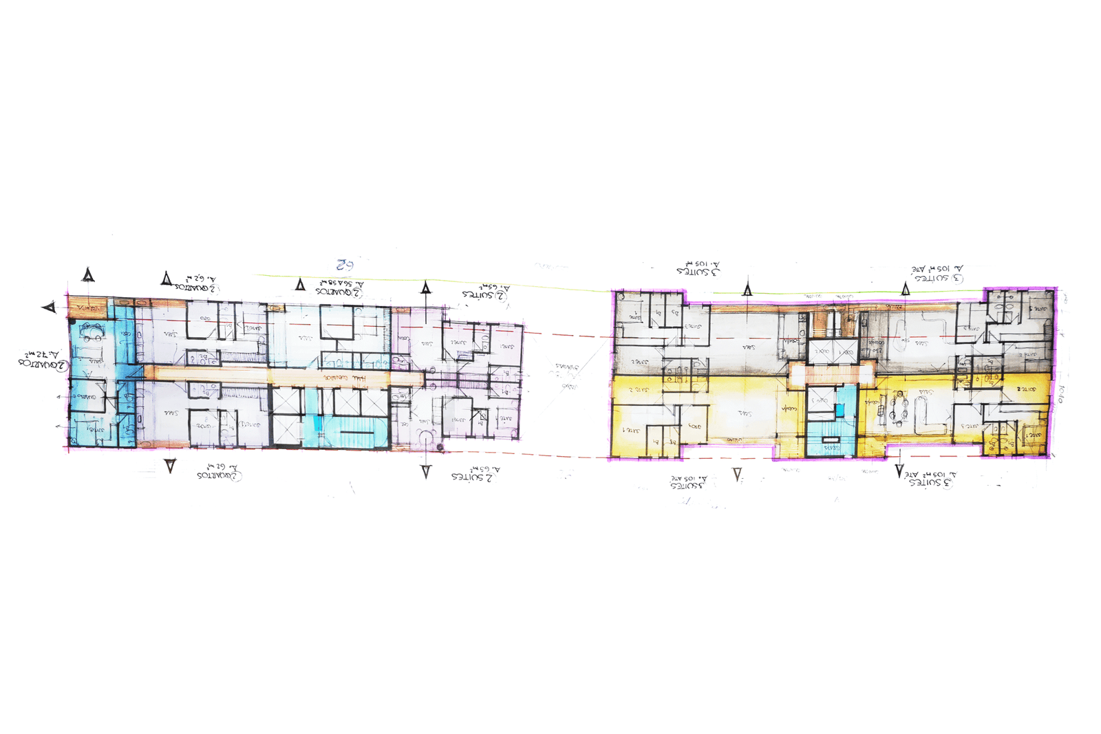
APARTAMENTOS

2-3Q | 62-185m²

COOF. APROVEIT.

6,20

ANO

2018

CLIENTE

GPL Incorporadora

ESTRUTURA

Colmeia Engenharia

INTERIORES

Juliana Sabbatini

PAISAGISMO

Fernanda Simão

EXECUTIVO

Alexandre Leite Arq. Ass.

LOCALIZAÇÃO