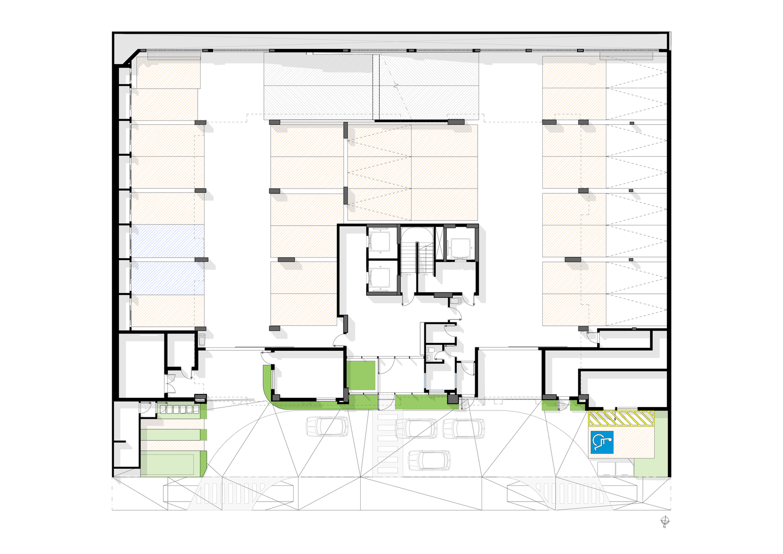
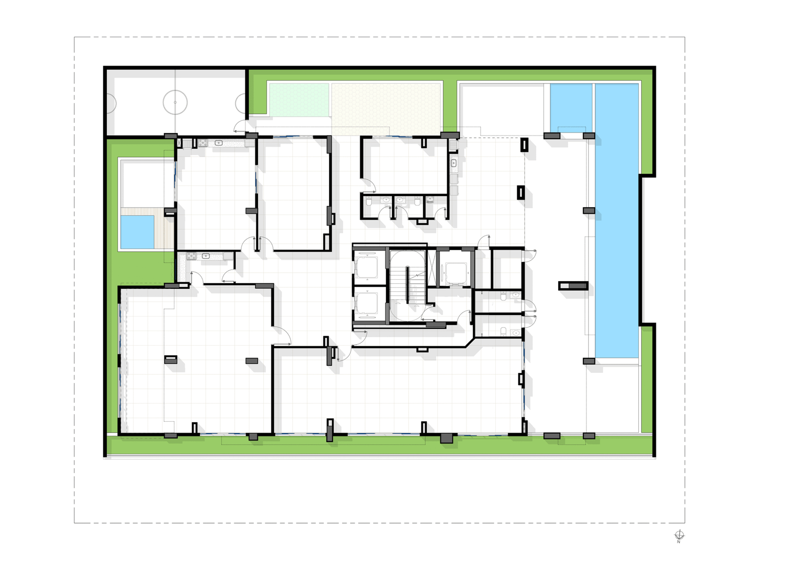
FICHA TÉCNICA

Á. TERRENO

1.412,02m²

Á. CONSTRUÇÃO

22.266,71m²

Á. PRIVATIVA

13.598,66m²

APARTAMENTOS

2Q-3Q-3S | 66-119m²

COOF. APROVEIT.

9,63

ANO

2021

CLIENTE

GMP Incorporação + Dinâmica Engenharia

ARQUITETURA

Alexandre Leite Arq. Ass.

FACHADA

Alexandre Leite Arq. Ass.

ESTRUTURA

Esper Engenharia de Projetos

INTERIORES

Juliana Sabbatini

PAISAGISMO

Sérgio Santana

EXECUTIVO

Alexandre Leite Arq. Ass.

LOCALIZAÇÃO