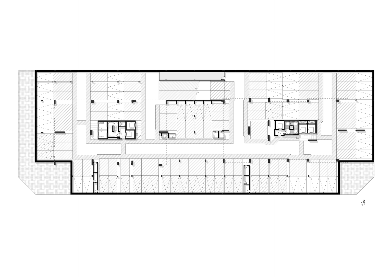
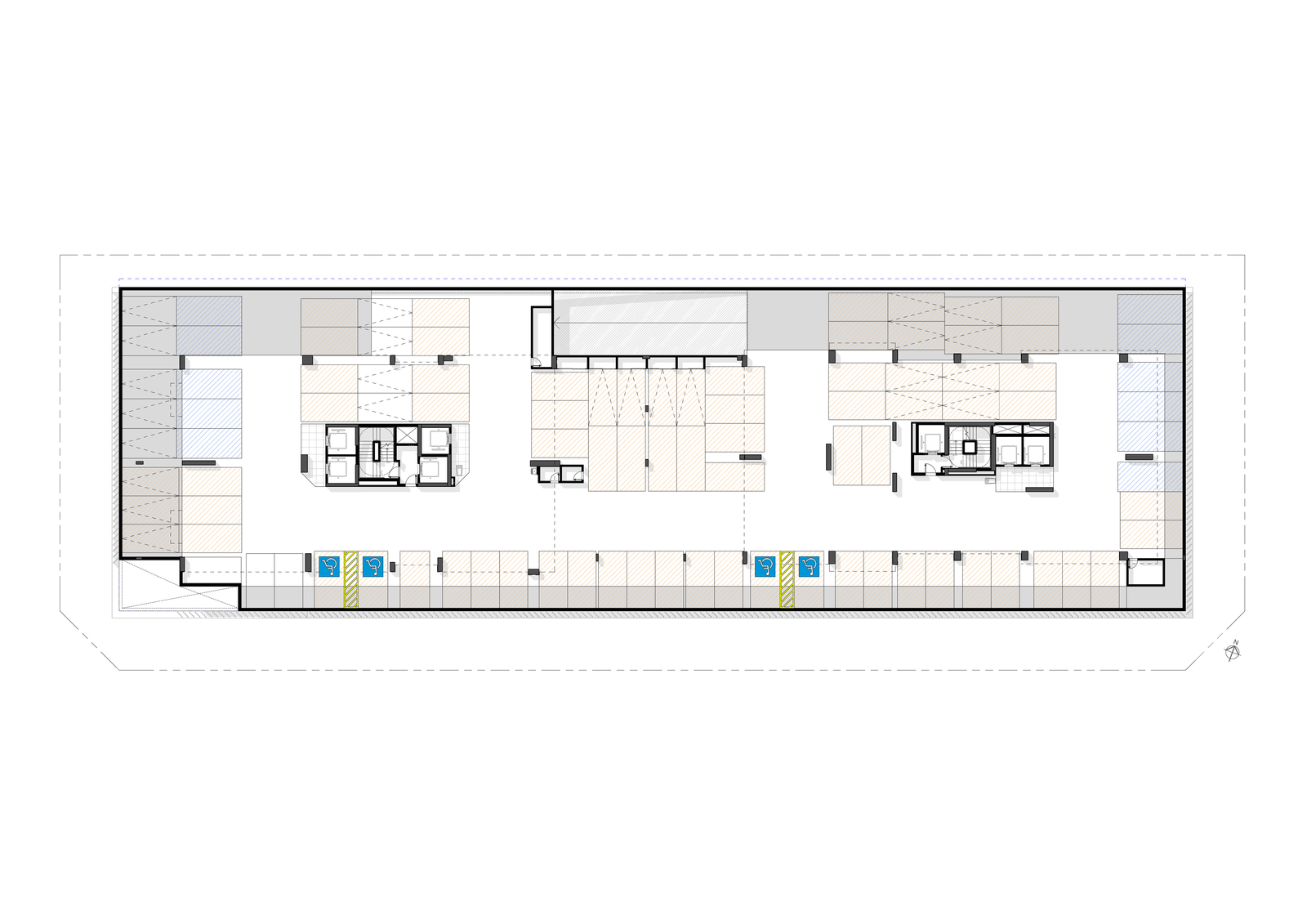
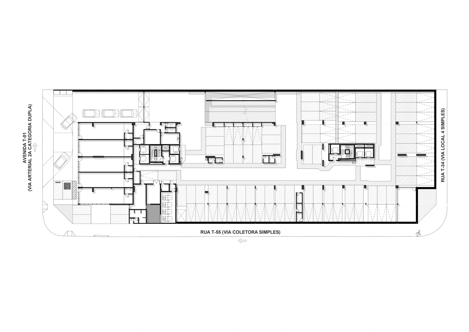
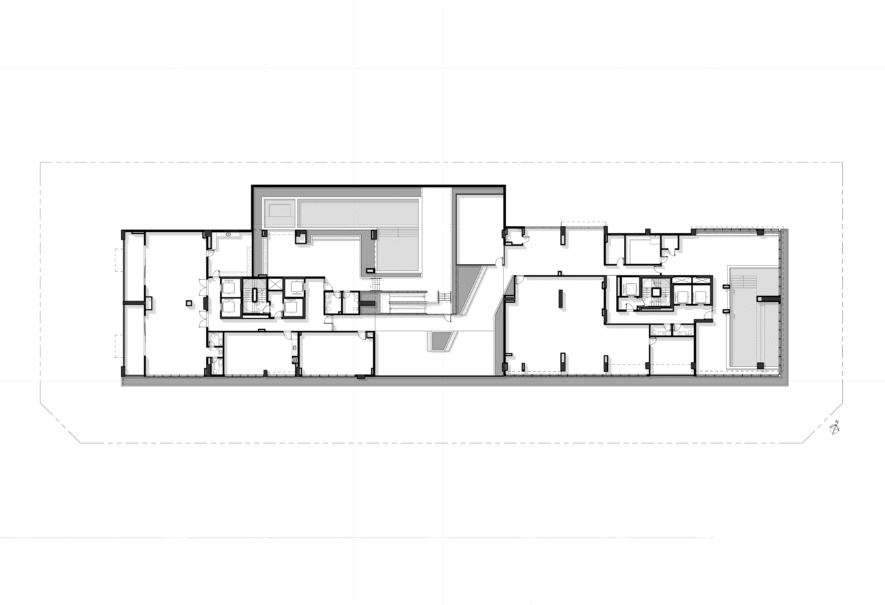
FICHA TÉCNICA

Á. TERRENO

3.475m²

Á. CONSTRUÇÃO

53.644,61m²

Á. PRIVATIVA

31.137,51m²

APARTAMENTOS

2Q-3S | 65-147m²

COOF. APROVEIT.

8,96

ANO

2021

CLIENTE

Brasal

ARQUITETURA

Alexandre Leite Arq. Ass.

FACHADA

Alexandre Leite Arq. Ass.

ESTRUTURA

Esper Engenharia de Projetos

PAISAGISMO

Florentino

EXECUTIVO

Alexandre Leite Arq. Ass.

LOCALIZAÇÃO