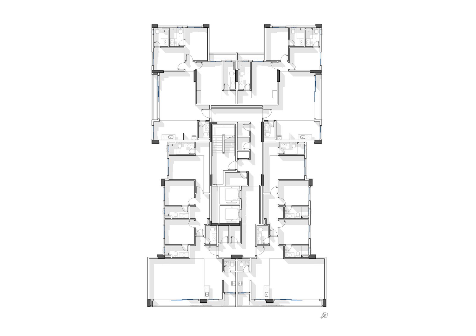
FICHA TÉCNICA

Á. TERRENO

1.949,14m²

Á. CONSTRUÇÃO

17.737,19m²

Á. PRIVATIVA

10.075m²

APARTAMENTOS

3Q | 103-131m²

COOF. APROVEIT.

5,17

ANO

2018

CLIENTE

EMISA Incorporadora

ARQUITETURA

Alexandre Leite Arq. Ass.

FACHADA

Alexandre Leite Arq. Ass.

ESTRUTURA

Colmeia Engenharia

INTERIORES

Mariana Mendonça

PAISAGISMO

Takeda Design

EXECUTIVO

Alexandre Leite Arq. Ass.

LOCALIZAÇÃO