FICHA TÉCNICA

Á. TERRENO

1.537,11m²

Á. CONSTRUÇÃO

25.387,43m²

Á. PRIVATIVA

15.348,61m²

APARTAMENTOS

2-3Q | 63-116m²

COOF. APROVEIT.

10

ANO

2015

CLIENTE

Terral + Town Incorporadora

ARQUITETURA

Alexandre Leite Arq. Ass.

FACHADA

Alexandre Leite Arq. Ass.

ESTRUTURA

Avila Engenharia de Estruturas

INTERIORES

Mezzo Arquitetura

PAISAGISMO

Martha Gavião

EXECUTIVO

Alexandre Leite Arq. Ass.

O conceito arquitetônico do HIT Marista nasce de uma composição volumétrica dinâmica, onde módulos quadrados se destacam ao longo da torre, criando uma identidade visual marcante. A fluidez do design reflete a integração entre estética, funcionalidade e inovação.

O HIT Marista se destaca por sua arquitetura e expressão visual dinâmica, criando um marco na paisagem do Setor Marista. A volumetria do edifício foi cuidadosamente planejada, trazendo uma composição modular em que elementos quadrados se sobressaem a cada seis pavimentos, formando um ritmo visual que se estende até o topo da torre.
O embasamento do empreendimento possui um tratamento arquitetônico diferenciado, com um revestimento sobreposto de painel perfurado natural, garantindo leveza e sofisticação. O pé-direito duplo no lobby reforça a imponência da entrada, promovendo uma transição fluida entre o espaço urbano e o ambiente interno.
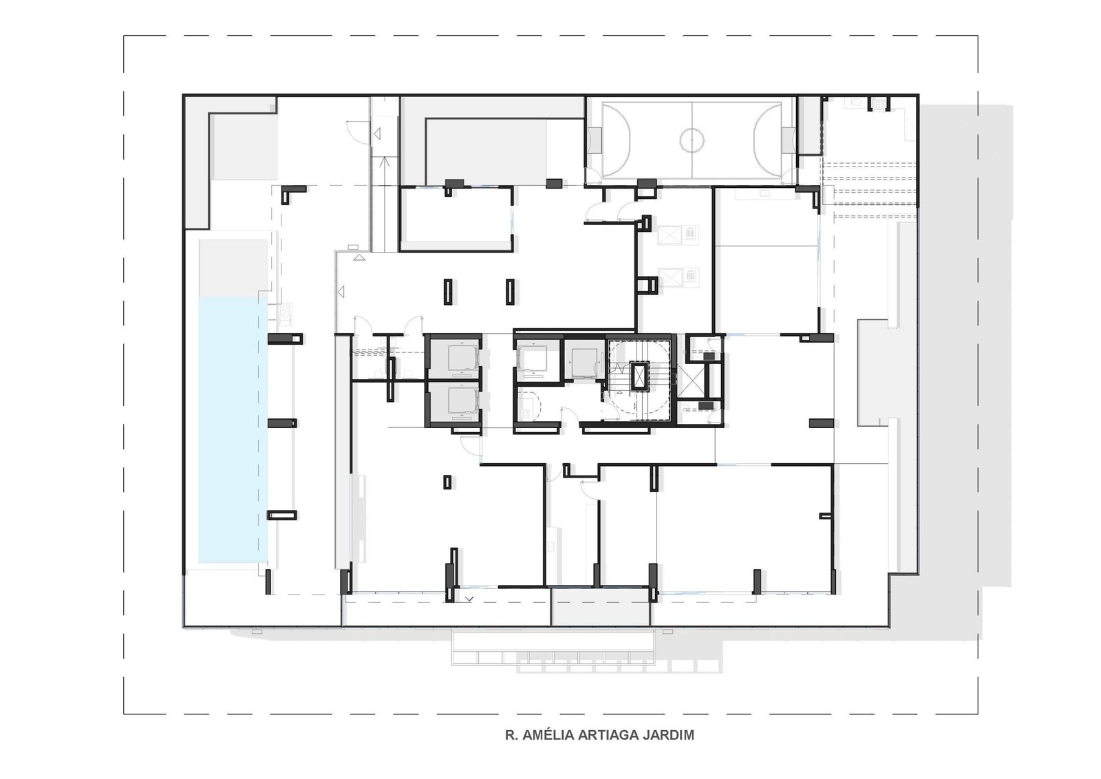
A relação entre o edifício e seu entorno é valorizada pela integração da área de lazer ao embasamento, criando um nível elevado de convivência e bem-estar. Entre os diferenciais, a presença de elementos sustentáveis, como a geração de energia solar para áreas comuns e pontos para carregamento de veículos elétricos, evidencia o compromisso com uma arquitetura responsável e alinhada às demandas do futuro.
Com uma proposta que equilibra design inovador, funcionalidade e sustentabilidade, o HIT Marista traduz uma nova forma de habitar, onde cada detalhe da arquitetura contribui para a experiência de um viver sofisticado e contemporâneo.



LOCALIZAÇÃO