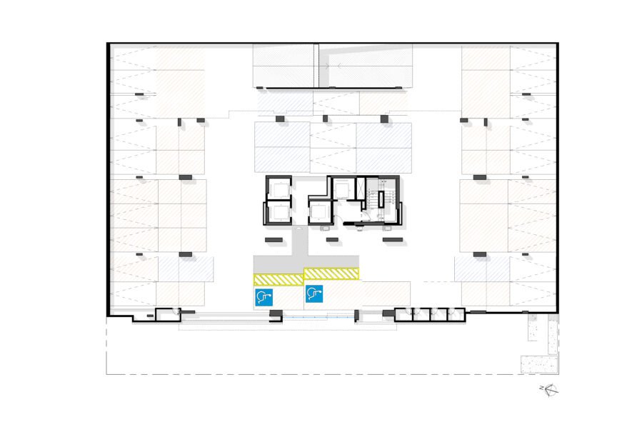
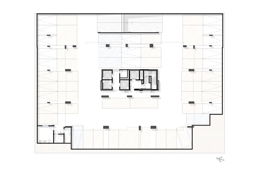
FICHA TÉCNICA

Á. TERRENO

1.485m²

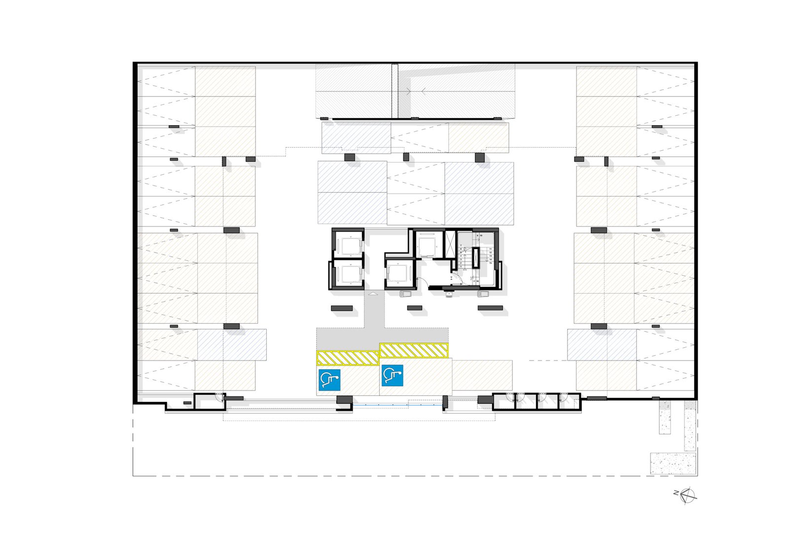
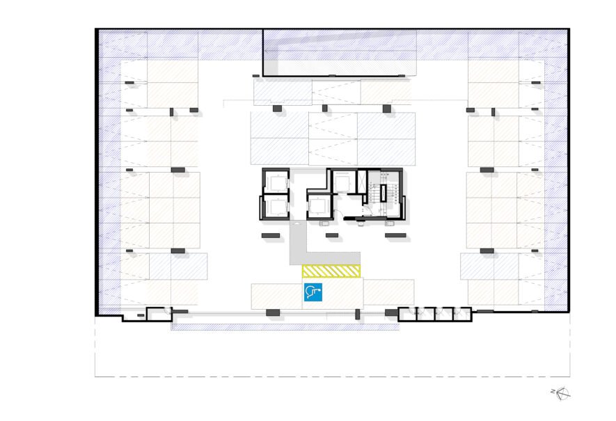
Á. CONSTRUÇÃO

23.730,98m²

Á. PRIVATIVA

13.927,24m²

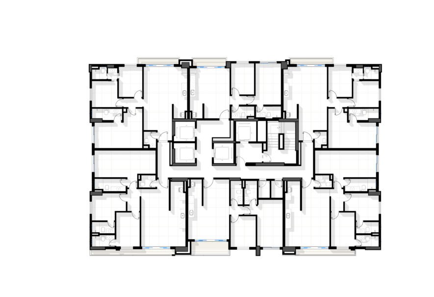
APARTAMENTOS

2-3S | 62-103m²

COOF. APROVEIT.

9,38

ANO

2020

CLIENTE

TERRAL

ARQUITETURA

Alexandre Leite Arq. Ass.

FACHADA

Alexandre Leite Arq. Ass.

ESTRUTURA

Avila Engenharia de Estruturas

INTERIORES

Adriana Mundim e Fernando Galvão

PAISAGISMO

Sérgio Santana

EXECUTIVO

Alexandre Leite Arq. Ass.

LOCALIZAÇÃO