FICHA TÉCNICA

Á. TERRENO

3.000,16m²

Á. CONSTRUÇÃO

20.534,06m²

Á. PRIVATIVA

9.480,49m²

APARTAMENTOS

3-4S | 116-269m²

COOF. APROVEIT.

3,16

ANO

2023

CLIENTE

MAXI CONSTRUTORA

ARQUITETURA

Alexandre Leite Arq. Ass.

FACHADA

Alexandre Leite Arq. Ass.

ESTRUTURA

Colmeia Engenharia

INTERIORES

Aline Borges

EXECUTIVO

Alexandre Leite Arq. Ass.

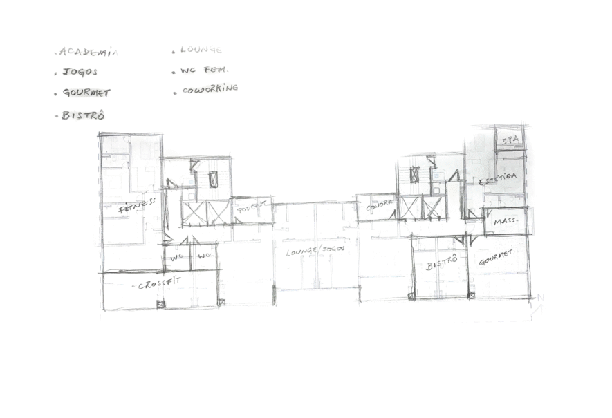
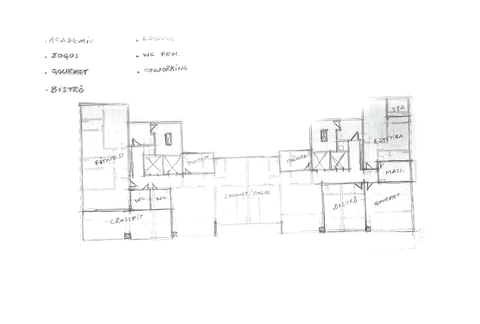
Com 20 pavimentos e 4 unidades por andar, o Leván se impõe como referência no entorno do Parque Una, unindo plantas inteligentes (116-121m²), concepção sofisticada e execução precisa.

As formas irregulares da fachada se contrapõem à grandeza e imponência de uma torre única e robusta.



LOCALIZAÇÃO