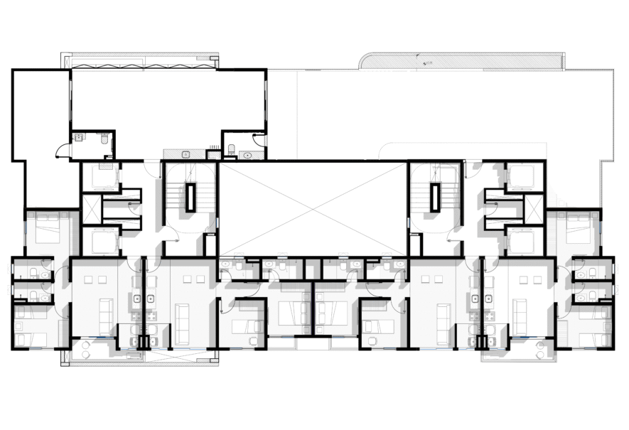
FICHA TÉCNICA

Á. TERRENO

4.212,26m²

Á. CONSTRUÇÃO

23.139,49m²

Á. PRIVATIVA

16.825,06m²

APARTAMENTOS

2S | 53-55m²

COOF. APROVEIT.

3,99

ANO

2019

CLIENTE

LOULY CAIXE

ARQUITETURA

Alexandre Leite Arq. Ass.

FACHADA

Alexandre Leite Arq. Ass.

INTERIORES

MF+ARQUITETOS

EXECUTIVO

Alexandre Leite Arq. Ass.

LOCALIZAÇÃO