FICHA TÉCNICA

Á. TERRENO

2.646,24m²

Á. CONSTRUÇÃO

40.462,30m²

Á. PRIVATIVA

25.616,25m²

APARTAMENTOS

3-5S | 194-524m²

COOF. APROVEIT.

9,68

ANO

2021

CLIENTE

Brasal

ARQUITETURA

Alexandre Leite Arq. Ass.

FACHADA

Alexandre Leite Arq. Ass.

ESTRUTURA

Avila Engenharia de Estruturas

INTERIORES

Ana Paula Melo

PAISAGISMO

João Paulo Florentino

EXECUTIVO

Alexandre Leite Arq. Ass.

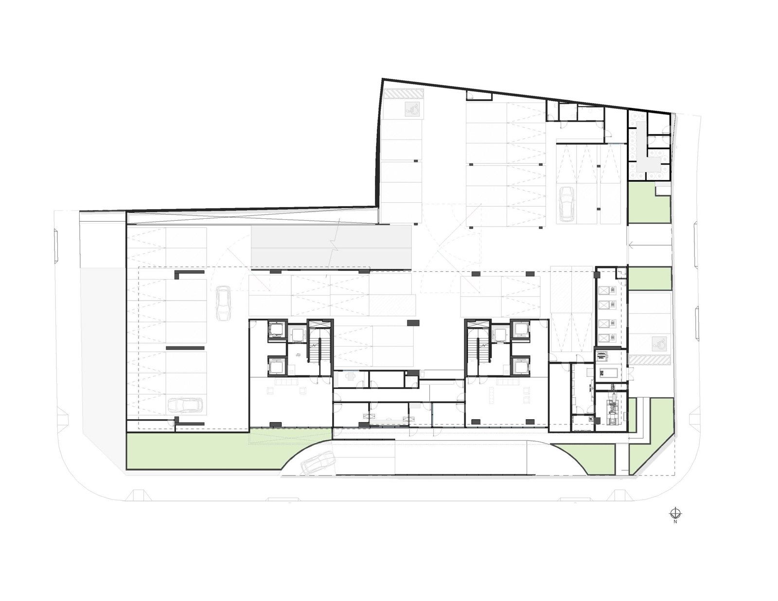
O Projeto Brasal – Reserva Harbo foi concebido para atender a um público de alto padrão, com foco no conforto, sofisticação e praticidade. Localizado no Setor Marista, um dos bairros mais valorizados de Goiânia, o empreendimento oferece fácil acesso a áreas verdes, centros comerciais e serviços essenciais, garantindo qualidade de vida aos moradores.
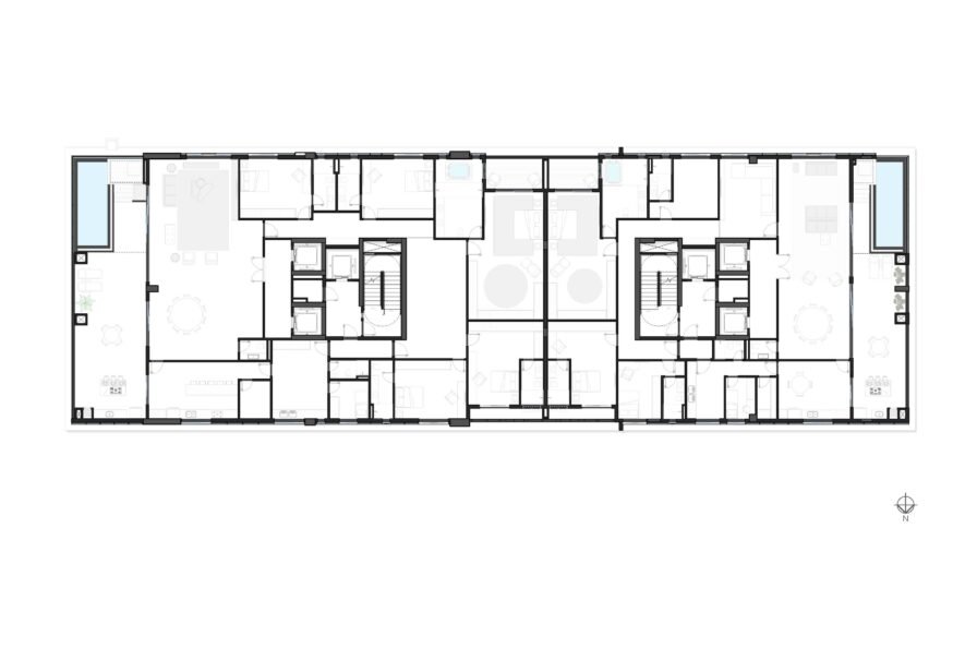
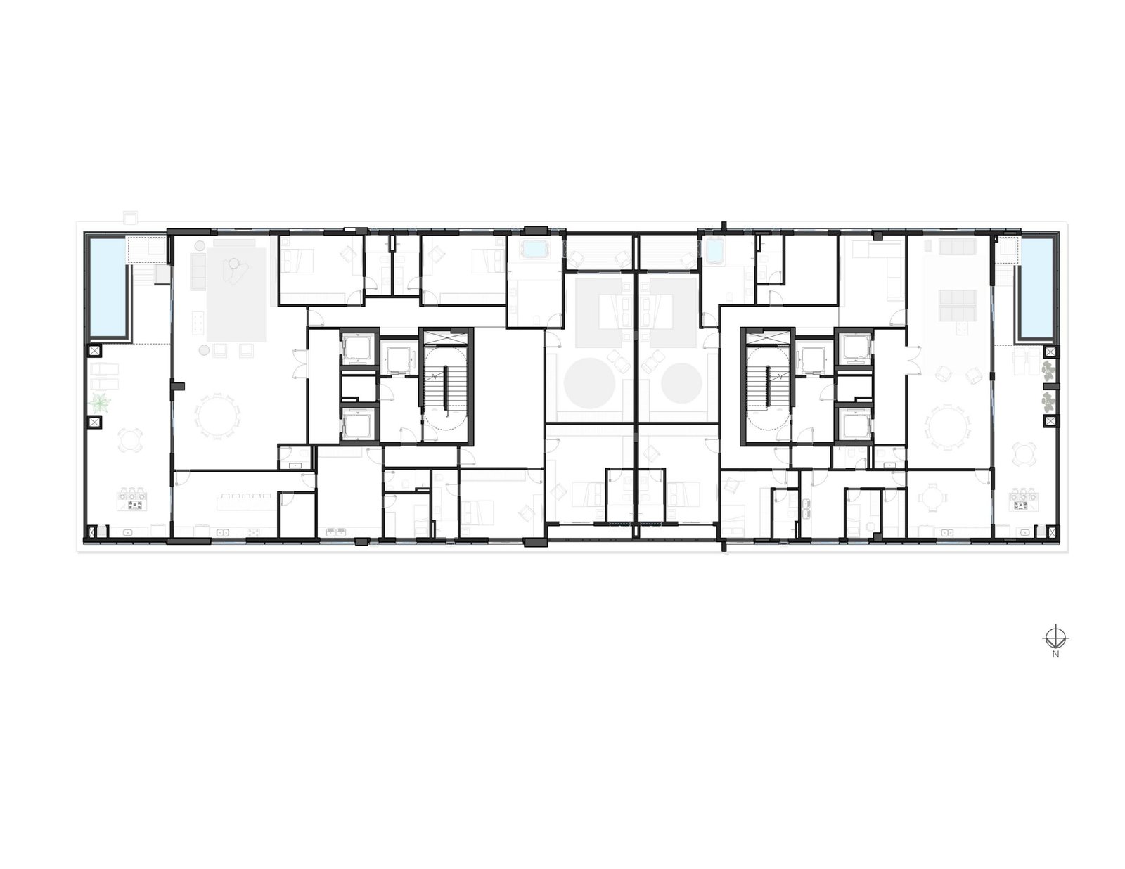
A torre de 27 pavimentos tipos e duas exclusivas penthouses é projetada com uma fachada moderna, além de um revestimento sofisticado em chapa perfurada e Dolmen Cinza. Essa composição cria uma harmonia visual com a vegetação do entorno, transmitindo um ar de elegância e contemporaneidade. Internamente, o projeto valoriza espaços amplos e bem distribuídos, com varandas gourmets que promovem ventilação cruzada e iluminação natural.
Os apartamentos, com 3 a 5 suítes e áreas de 194m² a 524m², oferecem o máximo de conforto e funcionalidade. O lazer é um dos maiores diferenciais, com opções como piscinas, academia, sauna, quadra e espaços de relaxamento, além de salão de festas e áreas para convivência. O projeto combina design inovador e excelência nos detalhes, criando um ambiente que reflete o alto padrão e a qualidade de vida que o empreendimento propõe.

O conceito do Reserva Harbo nasce no traço, onde volumetria, proporção e integração com o entorno são exploradas. As primeiras ideias definem uma arquitetura equilibrada, com linhas marcantes e materiais que dialogam com a paisagem urbana.



LOCALIZAÇÃO