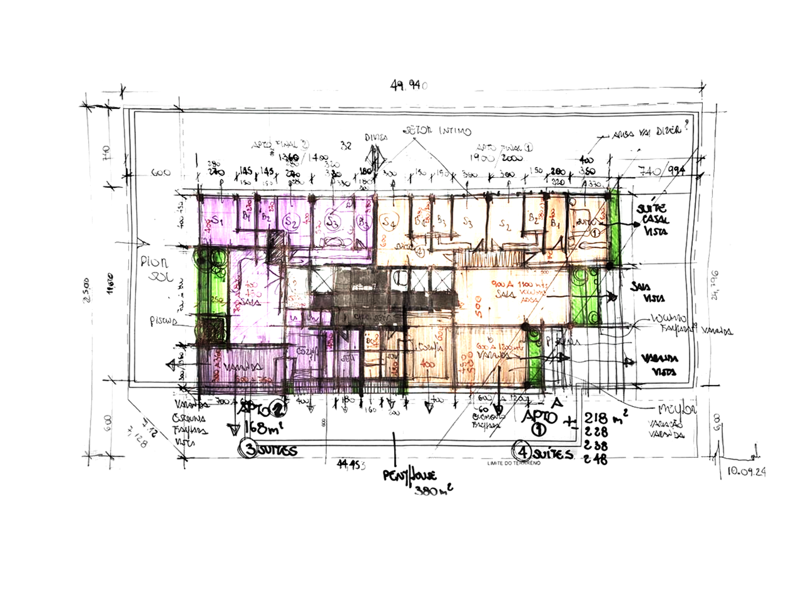
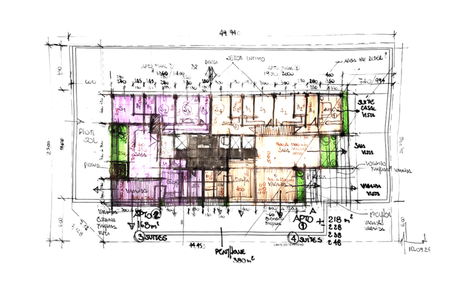
FICHA TÉCNICA

Á. TERRENO

1.498,05m²

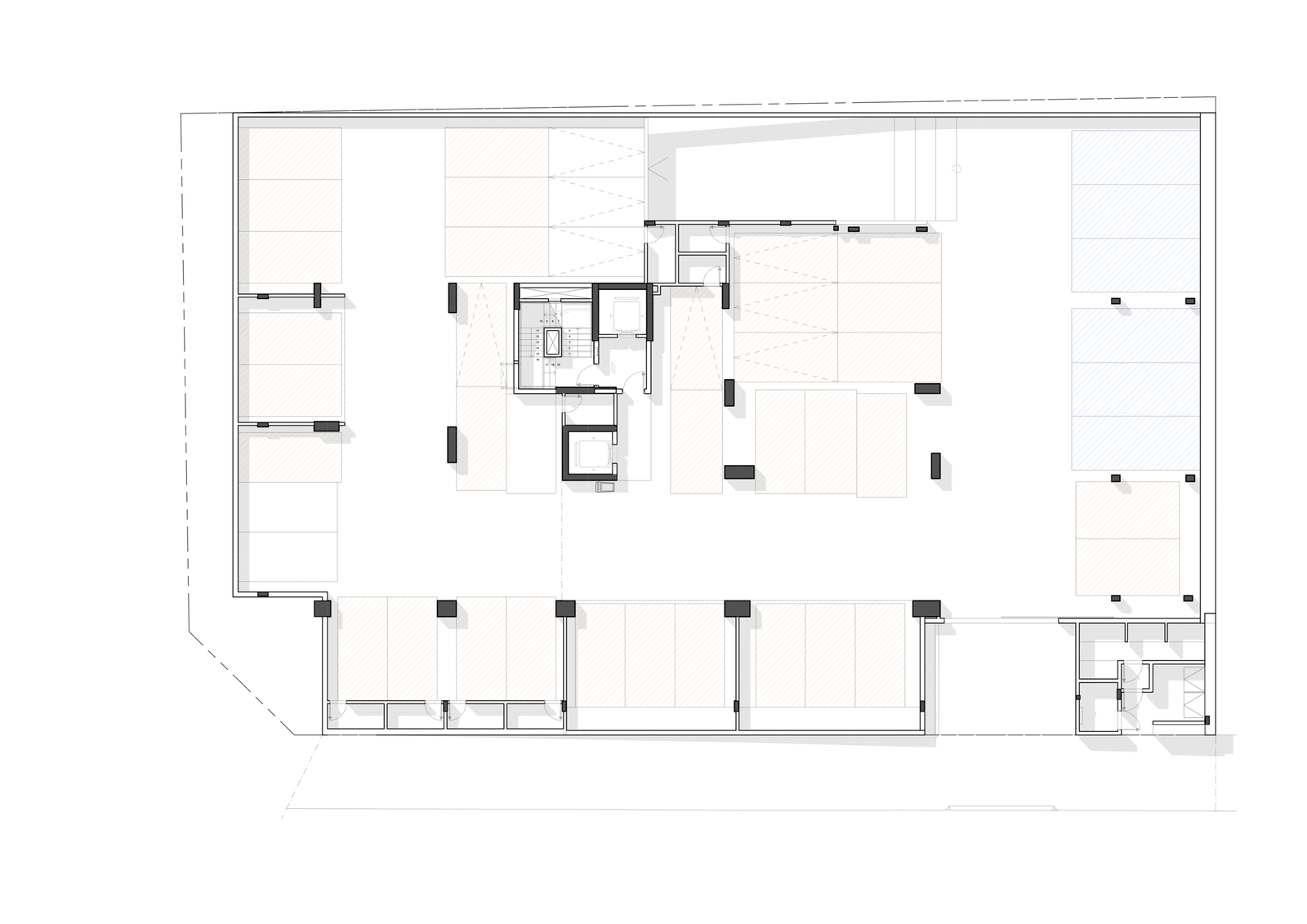
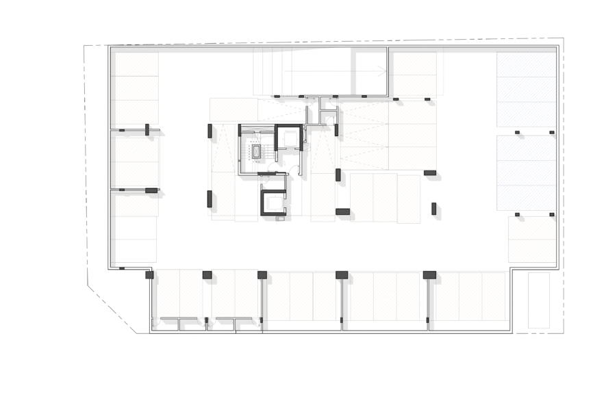
Á. CONSTRUÇÃO

19.068,48m²

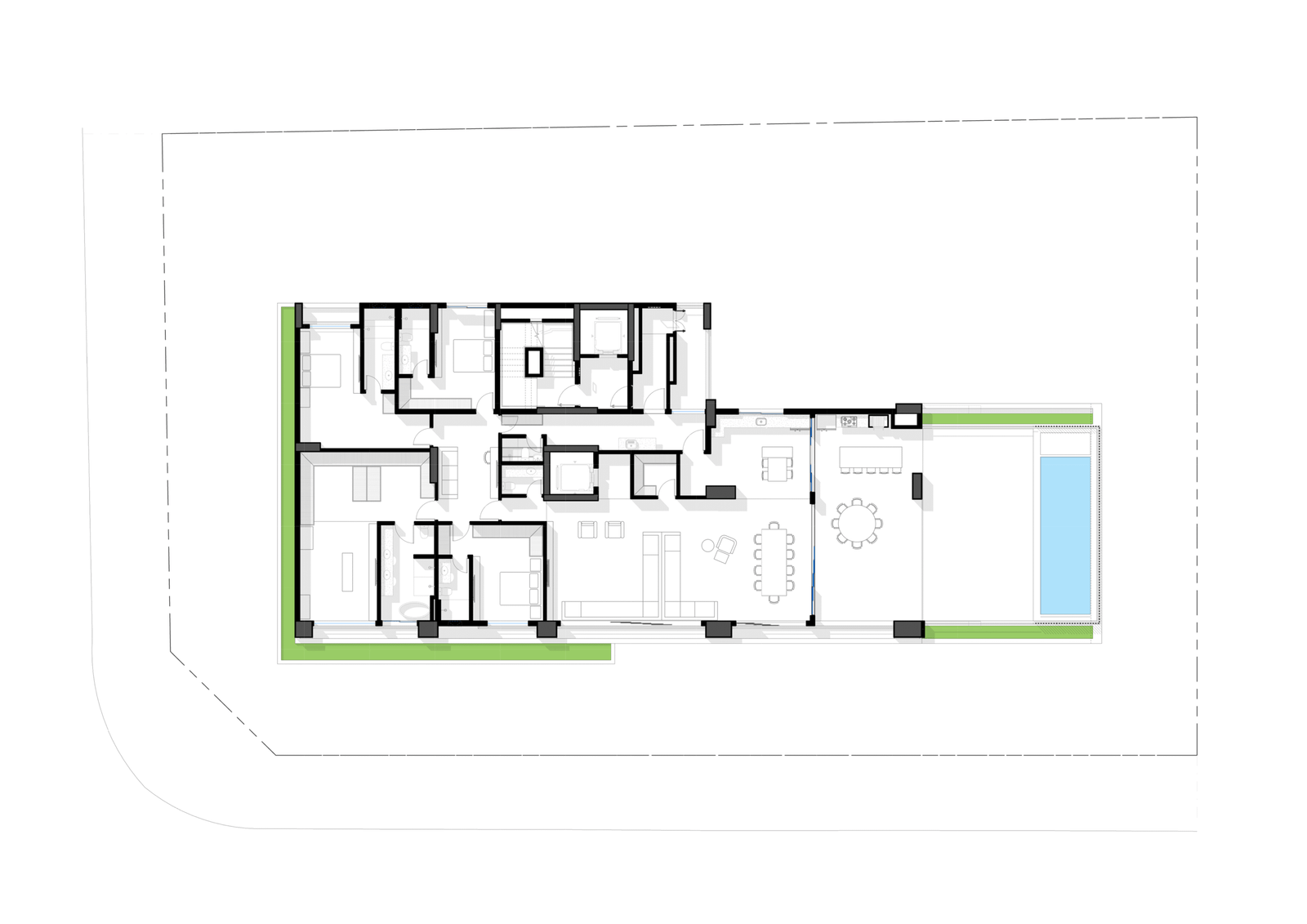
Á. PRIVATIVA

11.112,14m²

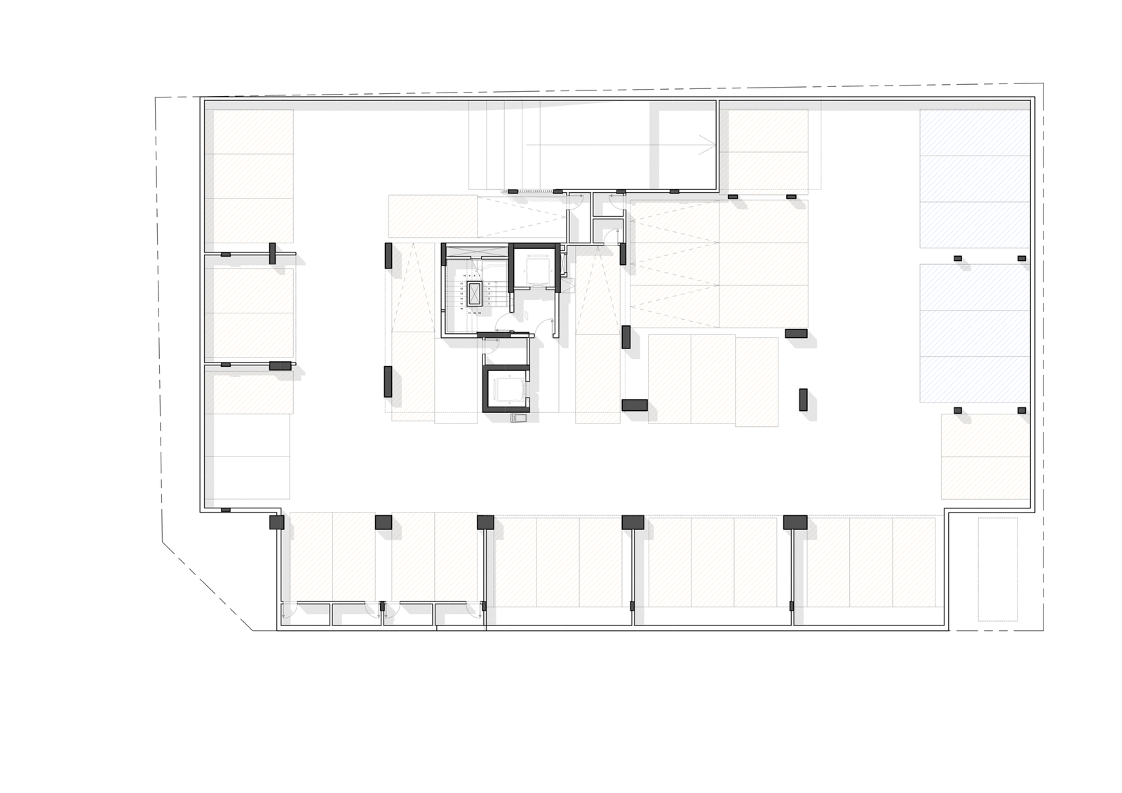
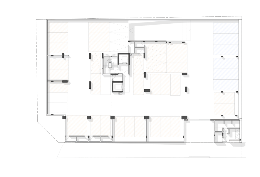
APARTAMENTOS

4S | 369-448m²

COOF. APROVEIT.

7,41

ANO

2024

CLIENTE

Consciente

ARQUITETURA

Alexandre Leite Arq. Ass.

FACHADA

Zien Arquitetura

ESTRUTURA

Prova Projetos

INTERIORES

Casabá

PAISAGISMO

Tellini Vontobel

EXECUTIVO

Alexandre Leite Arq. Ass.

LOCALIZAÇÃO