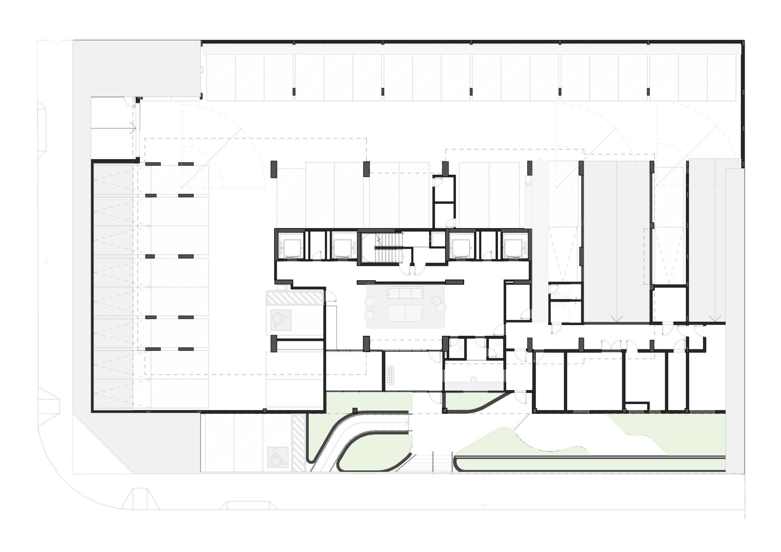
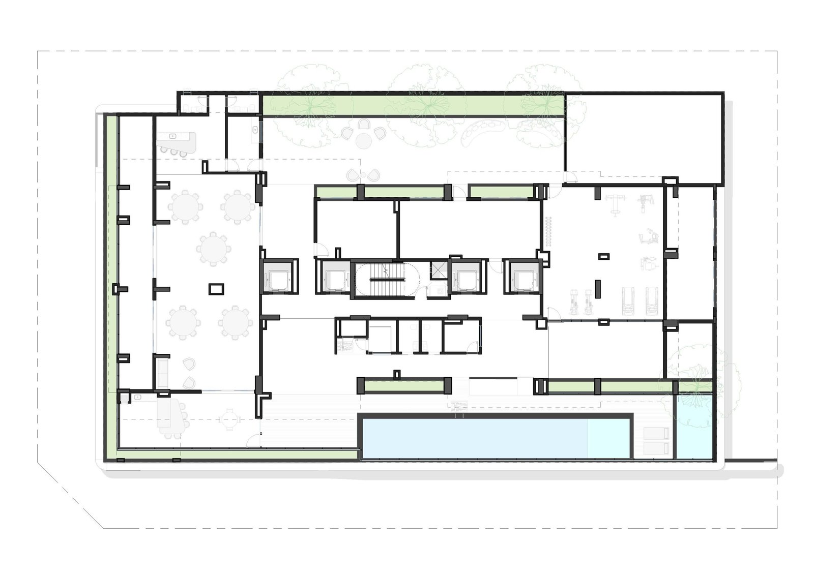
FICHA TÉCNICA

Á. TERRENO

2.017,31m²

Á. CONSTRUÇÃO

25.906,10m²

Á. PRIVATIVA

15.618,69m²

APARTAMENTOS

2Q-3S | 66-180m² c/PENTHOUSE

COOF. APROVEIT.

7,74

ANO

2024

CLIENTE

GPL Incorporadora

ARQUITETURA

Alexandre Leite Arq. Ass.

FACHADA

Alexandre Leite Arq. Ass.

ESTRUTURA

Prova Projetos

INTERIORES

Alexandre Leite Arq. Ass.

EXECUTIVO

Alexandre Leite Arq. Ass.

LOCALIZAÇÃO